Cyprus Production
Leto Barn House
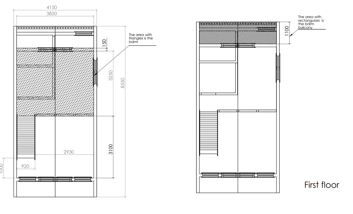
Leto Barn House
Couldn't load pickup availability
The Leto Barn House combines the rustic warmth of a countryside barn with the clean lines and efficiency of modern modular design. With a spacious open layout, a full first-floor bedroom, and a cozy balcony overlooking nature, this model is ideal for both family living and glamping accommodation.
Area
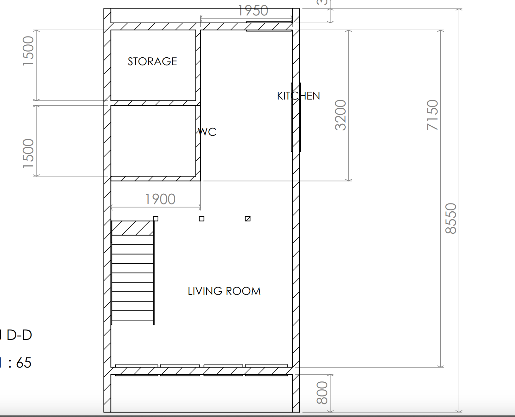
Ground Floor: 34 m²
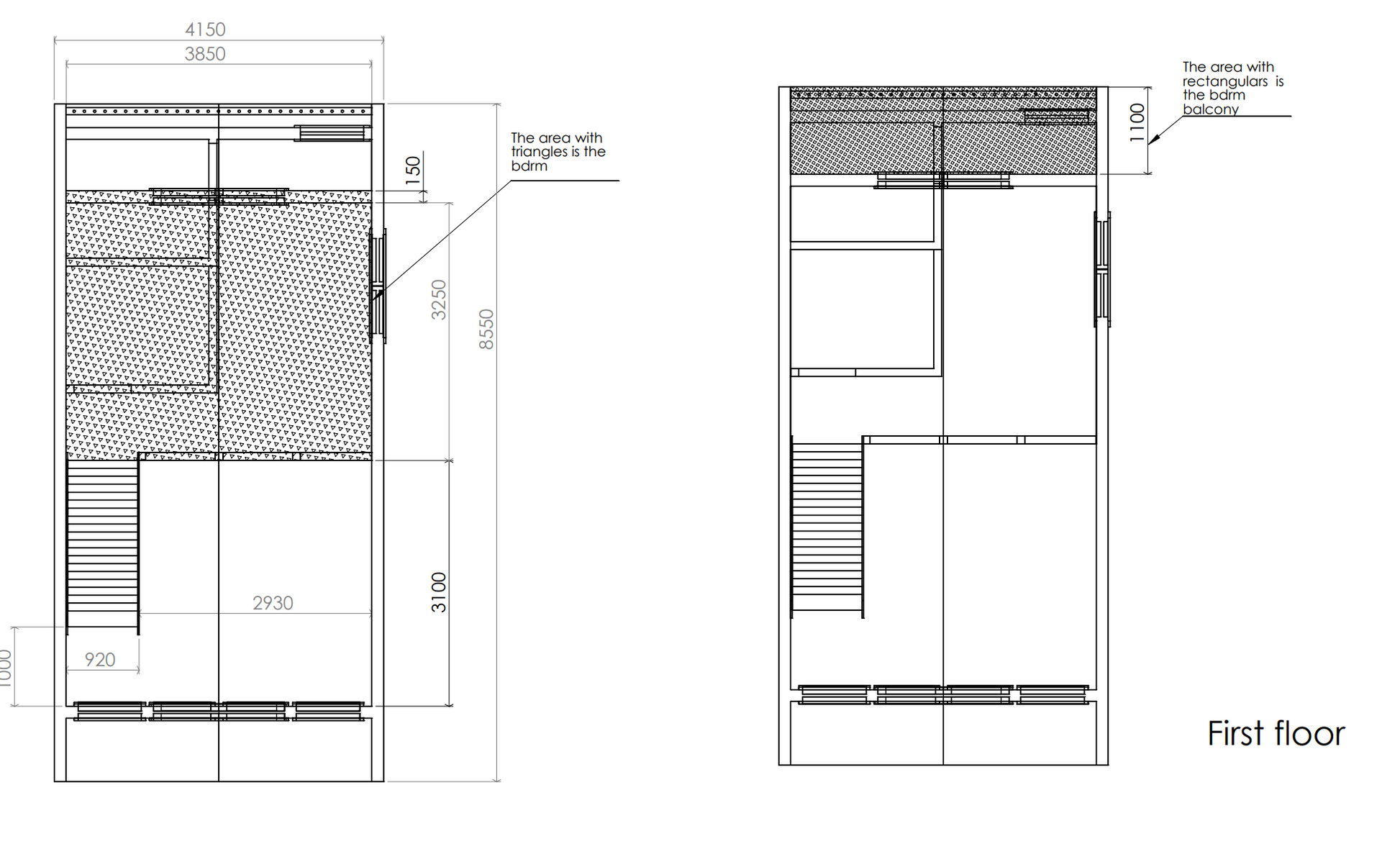
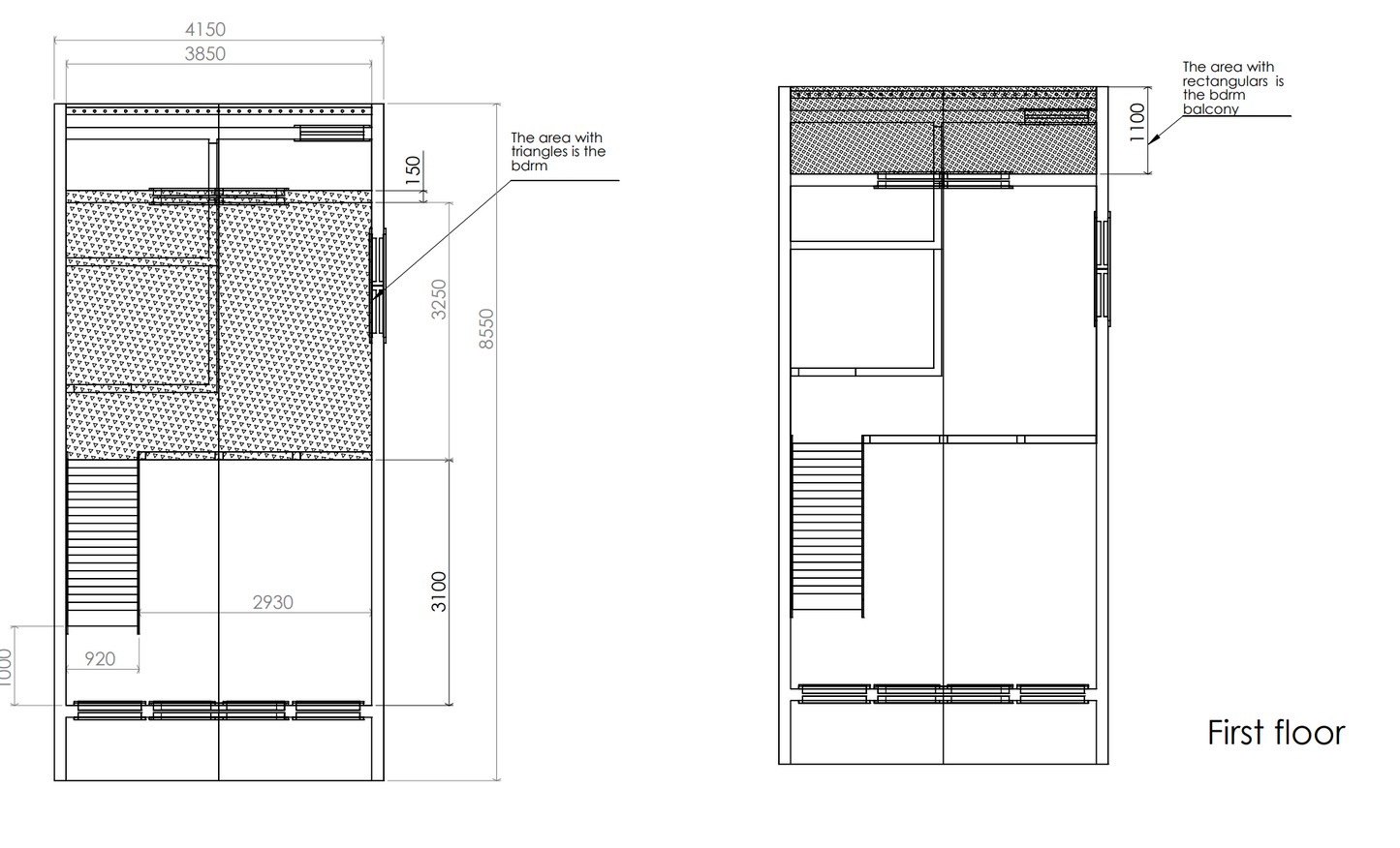
First Floor: 17 m²
Total Floor Area: 51 m²
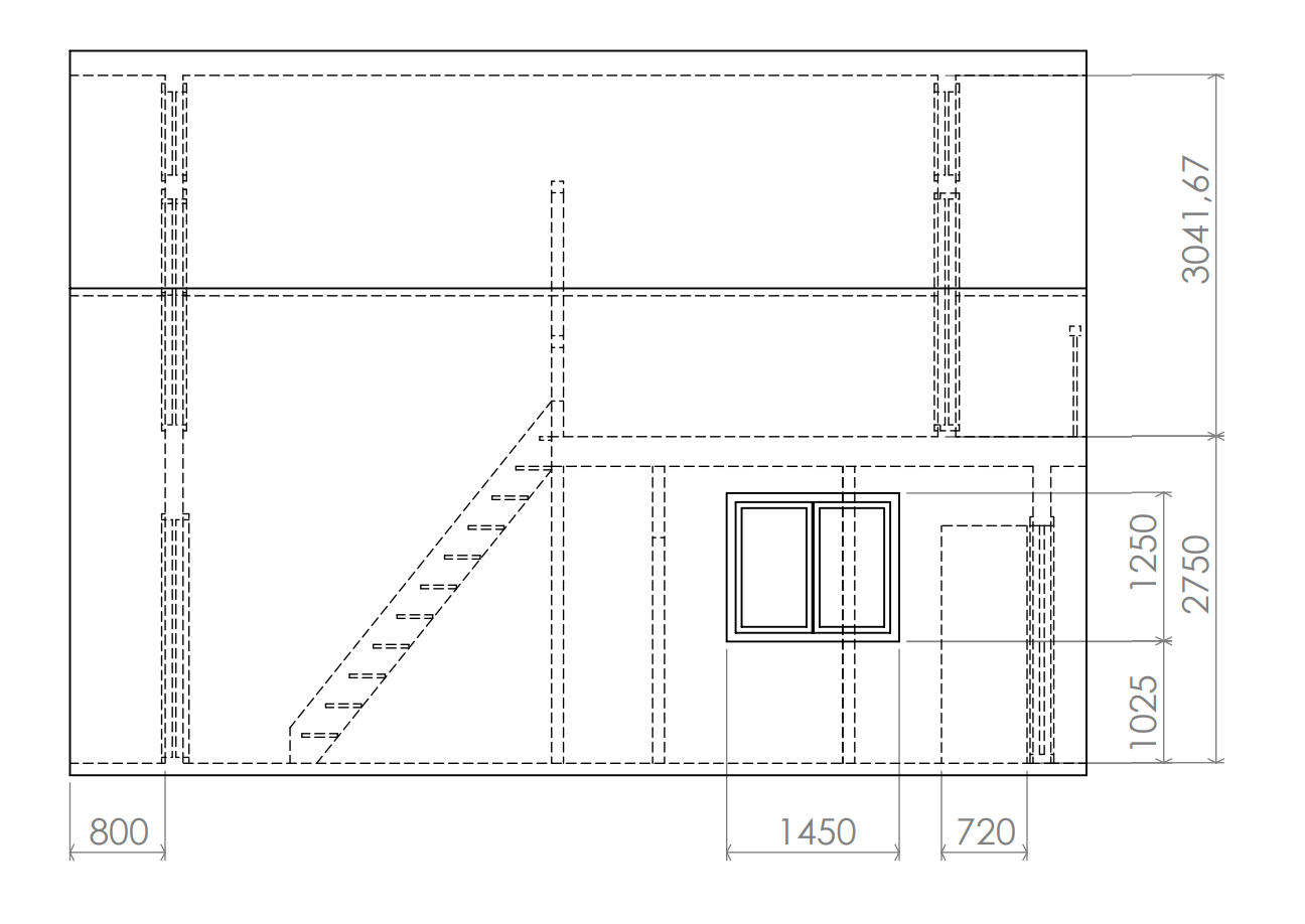
Dimensions: 8.55 m (L) × 4.15 m (W) × 6.10 m (H)
Main Structure
Outer Frame: Wooden beam structure (4x2 in) with 15 cm wall thickness, OSB panels, waterproof membrane, 100 mm stone wool insulation, and ventilated cavity for air circulation.
Inner Frame: Double-sided partition walls (WC, storage) with 100 mm stone wool insulation.
Exterior Finish: Metal roof tiles covering both walls and roof for superior weather protection.
First Floor & Balcony: Wooden beam construction (4x2 in), total area 17 m².
Flooring: Swiss Krono laminate wood flooring.
Windows & Doors: Aluminum frame series MU2500 with 28 mm I-PLUS Light double energy glass; includes balcony and kitchen doors, façade glazing, and fixed windows.
Stairs & Railings: Wooden stairs leading to the first floor, with wooden railings on the mezzanine and balcony.
Systems & Installations
Electrical: Complete internal wiring — 8 double sockets, 6 switches, main control panel, heater switch, smoke detector, USB sockets, and smart switches.
Lighting: Internal and external LED lights.
Plumbing: Full internal plumbing installation (kitchen and bathroom) with PPR pipes.
Air Conditioning: Provision for 24,000 BTU unit (device not included).
Bathroom
Fully equipped with waterproof drywall system, ceramic flooring, ventilation, lighting, and full sanitary set — toilet, shower tray with cabin, mounted sink with drawers, and quality mixers.
Kitchen
Melamine cabinets with soft-close mechanisms, FRANKE metal sink, built-in hood, and compact 52×30 cm cooktop (Appliances such as hood, cooktop, and refrigerator not included in offer price.)
Note
- Custom dimensions and finishes are available on request.
- Two bedrooms are possible instead of one (another layout).
- Price includes VAT 19%.
- Price excludes transportation, furniture, foundation, appliances.
